Mehr anzeigen zum Thema Aufteilung und Ausstattung
Aufteilung und Ausstattung
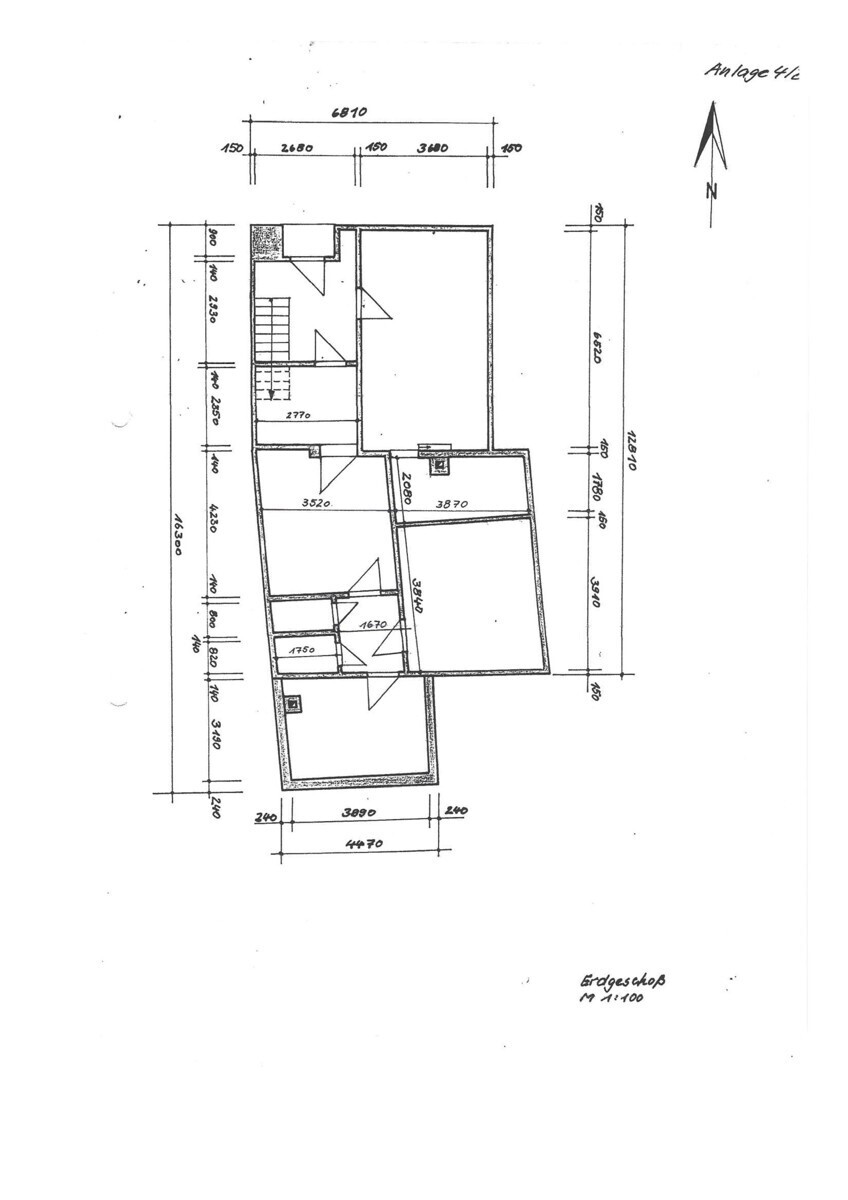
WOHNHAUS
# Wohnfläche gesamt: 187,05 m²
Die Größenangabe der Gesamtwohnfläche haben wir den uns zur Verfügung stehenden Grundrissen entnommen. Raumaufteilung und Raumgrößen sind in den beigefügten Grundrissen ersichtlich.
# Erdgeschoss: 92,14 m² Wohnfläche
- Eingangsbereich / Flur mit Treppe zum OG
- Offener Wohn- und Ess- und Küchenbereich mit Durchreiche
- Vorratsraum / Speisekammer, von der Küche aus begehbar
- 2 Zimmer (Durchgangszimmer)
- 2 Zimmer Im hinteren Bereich (bspw. Schlafzimmer und Kinderzimmer)
- 2 kleine Räume zum Einbau für Bad / WC
- Flur
# Obergeschoss: 94,91 m² Wohnfläche (Vollgeschoss ohne Dachschrägen)
- Badezimmer mit Duschkabine / WC / Waschbeckenanschluss
- Küche
- 5 Zimmer
- Flur
# Dachgeschoss
- Zimmer
- geräumiger Dachboden als Lager- und Abstellfläche
# Keller
- Gewölbekeller zur Vorratslagerung
- Kellerräume (massiv mit Holzbalkendecke)
- Kellerraum unter Anbau (geeignet als Waschhaus)
Ausstattung+
+ 2006 Heizung (Gasheizung Firma Domostar ) und Heizkörper im OG neu (regelmäßige Wartung)
+ Anfang 2000 Fenster EG und OG erneuert, mit Rollläden
+ Dach saniert
+ Haustür neu
+ Elektrik teilweise neu
+ Holztreppen
+ Holzdielen, größtenteils mit PVC-Belag verdeckt
+ DSL mit bis zu 175 Mbit/s im Download anliegend
# GRUNDSTÜCK
- Grundstücksgröße: 232 m²
- Grünfläche / Garten mit Nebengebäude hinter dem Haus
- Einfriedung durch Gebäudemauern und Zaun
# Wohnfläche gesamt: 187,05 m²
Die Größenangabe der Gesamtwohnfläche haben wir den uns zur Verfügung stehenden Grundrissen entnommen. Raumaufteilung und Raumgrößen sind in den beigefügten Grundrissen ersichtlich.
# Erdgeschoss: 92,14 m² Wohnfläche
- Eingangsbereich / Flur mit Treppe zum OG
- Offener Wohn- und Ess- und Küchenbereich mit Durchreiche
- Vorratsraum / Speisekammer, von der Küche aus begehbar
- 2 Zimmer (Durchgangszimmer)
- 2 Zimmer Im hinteren Bereich (bspw. Schlafzimmer und Kinderzimmer)
- 2 kleine Räume zum Einbau für Bad / WC
- Flur
# Obergeschoss: 94,91 m² Wohnfläche (Vollgeschoss ohne Dachschrägen)
- Badezimmer mit Duschkabine / WC / Waschbeckenanschluss
- Küche
- 5 Zimmer
- Flur
# Dachgeschoss
- Zimmer
- geräumiger Dachboden als Lager- und Abstellfläche
# Keller
- Gewölbekeller zur Vorratslagerung
- Kellerräume (massiv mit Holzbalkendecke)
- Kellerraum unter Anbau (geeignet als Waschhaus)
Ausstattung+
+ 2006 Heizung (Gasheizung Firma Domostar ) und Heizkörper im OG neu (regelmäßige Wartung)
+ Anfang 2000 Fenster EG und OG erneuert, mit Rollläden
+ Dach saniert
+ Haustür neu
+ Elektrik teilweise neu
+ Holztreppen
+ Holzdielen, größtenteils mit PVC-Belag verdeckt
+ DSL mit bis zu 175 Mbit/s im Download anliegend
# GRUNDSTÜCK
- Grundstücksgröße: 232 m²
- Grünfläche / Garten mit Nebengebäude hinter dem Haus
- Einfriedung durch Gebäudemauern und Zaun
Mehr anzeigen zum Thema Das Objekt
Das Objekt
Dieses voll unterkellerte Wohnhaus verfügt auf zwei Vollgeschossen über eine Gesamtwohnfläche von 187 m². Damit eignet sich das Gebäude für eine Familie mit Kindern ebenso wie für das Zusammenleben von mehreren Generationen. Ein zusätzlicher Wohnraum befindet sich im Dachgeschoss, wo ansonsten der typische Dachboden als Lagerfläche zur Verfügung steht. Zur Vorratslagerung, als weitere Abstellflächen und als Waschhaus dienen die Kellerräume inkl. eines schönen Gewölbekellers. Ausgehend vom Keller gelangt man in den nach Süden ausgerichteten Garten, in dem aktuell noch ein Schuppen steht. Auf der Wiese ließe sich eine gemütliche Sitzecke einrichten, umgeben von einigen Blumen und Sträuchern. Die für die Schule oder eine Bürotätigkeit so wichtige schnelle Internetverbindung liegt hier an. Pkw-Parkplätze können auf einer dem Haus gegenüberliegenden Parkfläche angemietet werden.
Einige Sanierungsarbeiten wurden in den letzten Jahren bereits durchgeführt. So wurden beispielweise die Fenster erneuert – seither gibt es mit Jalousien ausgestattete Kunststofffenster im Haus. Eine moderne Gasheizung mit neuen Heizkörpern versorgt das Obergeschoss mit Wärme, im Erdgeschoss wird mit Öfen geheizt. Wer sich einen modernen Wohnstandard wünscht, sollte daher mit einigen notwendigen Arbeiten bei Heizung und Elektrik rechnen. Umbauarbeiten könnten realisiert werden, indem das Obergeschoss bereits bezogen wird und notwendige Arbeiten schrittweise im Erdgeschoss stattfinden.
Wenn Sie preiswerten Wohnraum in einem traditionsreichen Ort mit guter Infrastruktur und herrlicher Natur suchen, dann kontaktieren Sie uns jetzt. Wir freuen uns auf Ihre Anfrage!
Einige Sanierungsarbeiten wurden in den letzten Jahren bereits durchgeführt. So wurden beispielweise die Fenster erneuert – seither gibt es mit Jalousien ausgestattete Kunststofffenster im Haus. Eine moderne Gasheizung mit neuen Heizkörpern versorgt das Obergeschoss mit Wärme, im Erdgeschoss wird mit Öfen geheizt. Wer sich einen modernen Wohnstandard wünscht, sollte daher mit einigen notwendigen Arbeiten bei Heizung und Elektrik rechnen. Umbauarbeiten könnten realisiert werden, indem das Obergeschoss bereits bezogen wird und notwendige Arbeiten schrittweise im Erdgeschoss stattfinden.
Wenn Sie preiswerten Wohnraum in einem traditionsreichen Ort mit guter Infrastruktur und herrlicher Natur suchen, dann kontaktieren Sie uns jetzt. Wir freuen uns auf Ihre Anfrage!
Mehr anzeigen zum Thema Die Lage
Die Lage
Die Immobilie liegt in der Ortsmitte von Uhlstädt und damit an einem sehr verkehrsgünstigen Standort. Die Entfernung zu Rudolstadt beträgt nur etwa 10 Kilometer, dazu kommt die Nähe zu mehreren großen Städten wie Jena, Weimar oder Erfurt in Verbindung mit einer guten Autobahnanbindung. Eine Arztpraxis und eine Apotheke befinden sich nur jeweils wenige Gehminuten entfernt; ein Discounter ist ebenfalls zu Fuß erreichbar. Umfangreichere Einkaufsmöglichkeiten sind im nahe gelegenen Rudolstadt vorhanden. Die nächstgelegene Bushaltestelle am Markt ist fußläufig in fünf Minuten ab Wohnhaus zu erreichen.
Darüber hinaus besitzt Uhlstädt dank seiner Lage inmitten der landschaftlich reizvollen Saaleaue Thüringens einen hohen Freizeitwert für Naturliebhaber. Wer gerne spazieren geht, findet rund um Uhlstädt reizvolle Wanderwege und tolle Aussichtspunkte. Mit all diesen vielen Vorteilen ist der beschauliche Ort ein idealer Platz zum Wohnen, Arbeiten und Erholen.
Verkehrsanbindungen / Entfernungen ab Objekt:
- Bushaltestelle am Markt: ca. 300 m
- Uhlstädt Zentrum: ca. 170 m
- Discounter: ca. 300 m
- Bahnhof Uhlstädt: ca. 450 m
- Rudolstadt Zentrum: ca. 10 km
- Pößneck Zentrum: ca. 17,5 km
- Saalfeld Zentrum: ca. 18 km
- Jena Zentrum: ca. 28 km
- B 88 (Ilmenau-Jena): anliegend
- A 4 (Dresden-Frankfurt) AS Jena-Göschwitz: ca. 20 km
- A 9 (München-Berlin) AS Dittersdorf: ca. 35 km
Darüber hinaus besitzt Uhlstädt dank seiner Lage inmitten der landschaftlich reizvollen Saaleaue Thüringens einen hohen Freizeitwert für Naturliebhaber. Wer gerne spazieren geht, findet rund um Uhlstädt reizvolle Wanderwege und tolle Aussichtspunkte. Mit all diesen vielen Vorteilen ist der beschauliche Ort ein idealer Platz zum Wohnen, Arbeiten und Erholen.
Verkehrsanbindungen / Entfernungen ab Objekt:
- Bushaltestelle am Markt: ca. 300 m
- Uhlstädt Zentrum: ca. 170 m
- Discounter: ca. 300 m
- Bahnhof Uhlstädt: ca. 450 m
- Rudolstadt Zentrum: ca. 10 km
- Pößneck Zentrum: ca. 17,5 km
- Saalfeld Zentrum: ca. 18 km
- Jena Zentrum: ca. 28 km
- B 88 (Ilmenau-Jena): anliegend
- A 4 (Dresden-Frankfurt) AS Jena-Göschwitz: ca. 20 km
- A 9 (München-Berlin) AS Dittersdorf: ca. 35 km
Mehr anzeigen zum Thema Sonstige Angaben
Sonstige Angaben
Rechtshinweis
Alle genannten Angaben zum Objekt basieren auf uns erteilten Informationen, insoweit ist eigene Haftung für deren Richtigkeit ausgeschlossen und Irrtum vorbehalten. Unsere Angebote sind freibleibend, unverbindlich und nur für den Empfänger bestimmt; sie dürfen ohne schriftliche Genehmigung nicht an Dritte weitergegeben werden. Zwischenverkauf bzw. Zwischenvermietung bleiben vorbehalten. Der Empfänger kann sich nur darauf berufen, von einem Angebot bereits vorher Kenntnis gehabt zu haben, wenn er dies der Immobilienagentur unverzüglich schriftlich mitteilt und den Nachweis hierfür erbringt.
Besichtigungen sind nach vorheriger Vereinbarung nur über unsere Agentur möglich.
Alle genannten Angaben zum Objekt basieren auf uns erteilten Informationen, insoweit ist eigene Haftung für deren Richtigkeit ausgeschlossen und Irrtum vorbehalten. Unsere Angebote sind freibleibend, unverbindlich und nur für den Empfänger bestimmt; sie dürfen ohne schriftliche Genehmigung nicht an Dritte weitergegeben werden. Zwischenverkauf bzw. Zwischenvermietung bleiben vorbehalten. Der Empfänger kann sich nur darauf berufen, von einem Angebot bereits vorher Kenntnis gehabt zu haben, wenn er dies der Immobilienagentur unverzüglich schriftlich mitteilt und den Nachweis hierfür erbringt.
Besichtigungen sind nach vorheriger Vereinbarung nur über unsere Agentur möglich.
Mehr anzeigen zum Thema Sonstige Angaben
Energieausweis
- Nutzungsart
- Wohnen