Mehr anzeigen zum Thema Aufteilung und Ausstattung
Aufteilung und Ausstattung
1. Wohnhaus mit 126,55 m² Gesamtwohnfläche
Die Terrasse wurde mit der Hälfte ihrer Grundfläche (ca. 24 m²) in die Wohnfläche eingerechnet. Die Zimmergrößen sind in den beigefügten Grundrissen ersichtlich.
# Erdgeschoss mit 62,30 m² Wohnfläche:
- Küche, offen zum Wohn- und Esszimmer
- Wohn- und Esszimmer mit Zugang zur Terrasse
- Tageslichtbad mit Dusche/WC/Waschtisch
- Hauseingangsbereich / Diele mit Zugang zum Keller und zum Nebengebäude
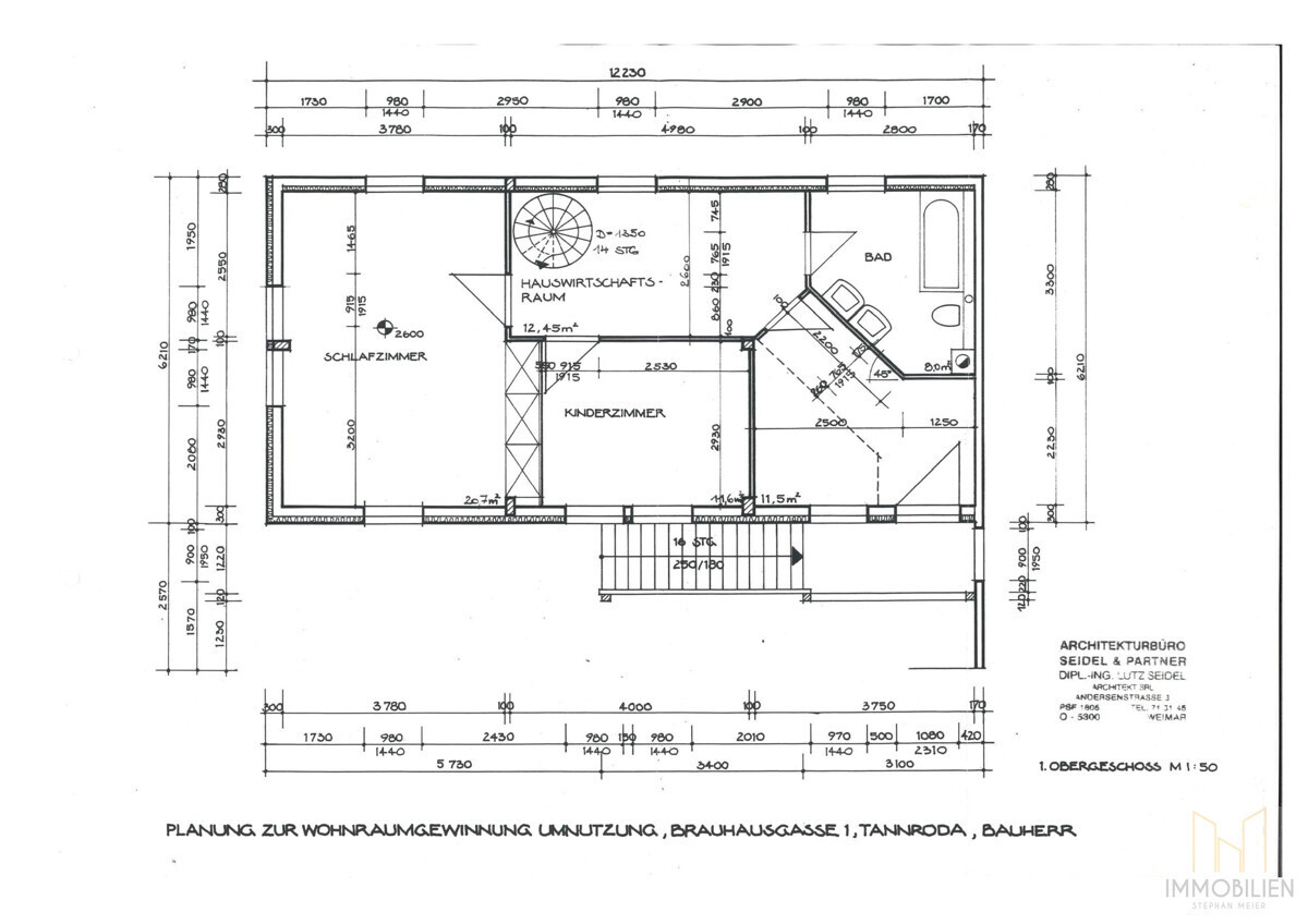
# Obergeschoss mit 64,25 m² Wohnfläche:
- Schlafzimmer
- Kinderzimmer
- Tageslichtbad mit Eckwanne/WC/Waschbecken sowie Handtuchheizkörper
- Hauswirtschaftsbereich
- Galerie mit Zugang zu Balkon und Obergeschoss vom Nebengebäude sowie zum Dachboden des Wohnhauses und Nebengebäudes
# Dachboden:
- aktuell Lagerfläche
- ausbaubar als Wohnraum
- offen zum Nebengebäude auf gleicher Bodenhöhe
2. Nebengebäude mit ca. 80 m² Grundfläche
- 3 Etagen sowie Keller
- Grundfläche ca. 80 m²
- aktuell Lagerfläche
- Ausbau aller drei oberen Etagen nach individuellem Wunsch möglich
- Keller: Heizung und Waschmaschine
Sanierungen / Ausstattung+
+ 2022 Fassade neu
+ 2014 Sanierung innen mit Erneuerung der Decken, Wände und Fußböden sowie des Badezimmers im EG
+ 2000 Dach Wohnhaus neu
+ 1993-1995 grundhafter Aus- und Umbau mit Sanierung von Heizung, Elektrik, Dämmung, Fenstern und Dach des Nebengebäudes inkl. neuem Dachstuhl
+ Fußbodenheizung im gesamten Erdgeschoss des Wohnhauses, im OG Heizkörper
+ Kamin im Wohnzimmer
+ Dusche im EG bodeneben begehbar
+ Holzfenster mit abnehmbaren Kreuzen
+ Holztreppe
+ Holztüren
+ TV über SAT-Schüssel
3. Grundstück 395 m²
- Einfriedung komplett durch Gartentor, Hecken, Mauern und Zaun
- Garten mit Wiese, Sträuchern und Kräuterschnecke
- Carport mit einem Pkw-Stellplatz
- Zufahrt zum Carport gepflastert, hier weitere zwei Pkw-Stellplätze
Die Terrasse wurde mit der Hälfte ihrer Grundfläche (ca. 24 m²) in die Wohnfläche eingerechnet. Die Zimmergrößen sind in den beigefügten Grundrissen ersichtlich.
# Erdgeschoss mit 62,30 m² Wohnfläche:
- Küche, offen zum Wohn- und Esszimmer
- Wohn- und Esszimmer mit Zugang zur Terrasse
- Tageslichtbad mit Dusche/WC/Waschtisch
- Hauseingangsbereich / Diele mit Zugang zum Keller und zum Nebengebäude
# Obergeschoss mit 64,25 m² Wohnfläche:
- Schlafzimmer
- Kinderzimmer
- Tageslichtbad mit Eckwanne/WC/Waschbecken sowie Handtuchheizkörper
- Hauswirtschaftsbereich
- Galerie mit Zugang zu Balkon und Obergeschoss vom Nebengebäude sowie zum Dachboden des Wohnhauses und Nebengebäudes
# Dachboden:
- aktuell Lagerfläche
- ausbaubar als Wohnraum
- offen zum Nebengebäude auf gleicher Bodenhöhe
2. Nebengebäude mit ca. 80 m² Grundfläche
- 3 Etagen sowie Keller
- Grundfläche ca. 80 m²
- aktuell Lagerfläche
- Ausbau aller drei oberen Etagen nach individuellem Wunsch möglich
- Keller: Heizung und Waschmaschine
Sanierungen / Ausstattung+
+ 2022 Fassade neu
+ 2014 Sanierung innen mit Erneuerung der Decken, Wände und Fußböden sowie des Badezimmers im EG
+ 2000 Dach Wohnhaus neu
+ 1993-1995 grundhafter Aus- und Umbau mit Sanierung von Heizung, Elektrik, Dämmung, Fenstern und Dach des Nebengebäudes inkl. neuem Dachstuhl
+ Fußbodenheizung im gesamten Erdgeschoss des Wohnhauses, im OG Heizkörper
+ Kamin im Wohnzimmer
+ Dusche im EG bodeneben begehbar
+ Holzfenster mit abnehmbaren Kreuzen
+ Holztreppe
+ Holztüren
+ TV über SAT-Schüssel
3. Grundstück 395 m²
- Einfriedung komplett durch Gartentor, Hecken, Mauern und Zaun
- Garten mit Wiese, Sträuchern und Kräuterschnecke
- Carport mit einem Pkw-Stellplatz
- Zufahrt zum Carport gepflastert, hier weitere zwei Pkw-Stellplätze
Mehr anzeigen zum Thema Das Objekt
Das Objekt
Dieses bezaubernde Anwesen war in früheren Zeiten eine Korbmacherei, ein in dieser Region verbreitetes Handwerk. Ab 1993 begannen die jetzigen Besitzer, insbesondere das Wohnhaus komplett zu sanieren. Große Posten wie Heizung, Elektrik, Dämmung, Fenster und Dach wurden dabei sämtlich erneuert. Die liebevolle Neugestaltung des Innenbereichs mit Decken, Wänden, Fußböden und dem Bad im Erdgeschoss folgte dann 2014. Seither spendet die im ganzen Erdgeschoss verlegte Fußbodenheizung angenehme Wärme, ergänzt durch einen gemauerten Kamin im Wohnzimmer, während im Obergeschoss klassische Heizkörper angebracht wurden. Im Erdgeschoss befinden sich das Wohn- und Esszimmer mit offenem Durchgang zur Küche sowie ein schickes Bad und die Diele. Schlafzimmer, Kinderzimmer, ein Hauswirtschaftsbereich und ein zweites Badezimmer sind im Obergeschoss des Wohnhauses untergebracht.
Wer die Wohnfläche gerne vergrößern möchte, weil getrennte Wohnbereiche für größere Kinder oder Platz für ein Hobby oder den Beruf benötigt werden, hat in dem an das Wohnhaus angeschlossenen Nebengebäude eine Menge Spielraum für eigene kreative Ideen. Auf drei Etagen ist hier ein Ausbau möglich – ob als Wohnraum oder Gewerbefläche wie beispielsweise Ferienwohnungen. Im Keller ist die Heizung untergebracht, die zukünftig beispielsweise durch die Kombination von Pellet- oder Hackschnitzelheizung und einer Solaranlage auf dem Dach für die Warmwasserbereitung ersetzt werden könnte. Der Dachboden beider Gebäude geht nahtlos ineinander über, was eine großzügige Planung ermöglicht. Dach und Dachstuhl des Nebengebäudes sind ebenfalls bereits erneuert worden. Reizvoll ist auch der kleine Garten, in dem die überdachte Terrasse zum gemütlichen Sitzen einlädt und wo seitlich mehrere Parkplätze zur Verfügung stehen.
Wenn wir Ihr Interesse an dieser attraktiven Immobilie geweckt haben, freuen wir uns auf Ihre Anfrage!
Wer die Wohnfläche gerne vergrößern möchte, weil getrennte Wohnbereiche für größere Kinder oder Platz für ein Hobby oder den Beruf benötigt werden, hat in dem an das Wohnhaus angeschlossenen Nebengebäude eine Menge Spielraum für eigene kreative Ideen. Auf drei Etagen ist hier ein Ausbau möglich – ob als Wohnraum oder Gewerbefläche wie beispielsweise Ferienwohnungen. Im Keller ist die Heizung untergebracht, die zukünftig beispielsweise durch die Kombination von Pellet- oder Hackschnitzelheizung und einer Solaranlage auf dem Dach für die Warmwasserbereitung ersetzt werden könnte. Der Dachboden beider Gebäude geht nahtlos ineinander über, was eine großzügige Planung ermöglicht. Dach und Dachstuhl des Nebengebäudes sind ebenfalls bereits erneuert worden. Reizvoll ist auch der kleine Garten, in dem die überdachte Terrasse zum gemütlichen Sitzen einlädt und wo seitlich mehrere Parkplätze zur Verfügung stehen.
Wenn wir Ihr Interesse an dieser attraktiven Immobilie geweckt haben, freuen wir uns auf Ihre Anfrage!
Mehr anzeigen zum Thema Die Lage
Die Lage
Die Immobilie liegt in Tannroda, seit 1994 ein Ortsteil der Stadt Bad Berka im thüringischen Landkreis Weimarer Land. Mit seiner ruhigen und naturnahen Lage im reizvollen mittleren Ilmtal sowie der räumlichen Nähe zur Klassikerstadt Weimar und der thüringischen Landeshauptstadt Erfurt bietet Tannroda damals wie heute beste Voraussetzungen für einen angenehmen Wohnort. Auf der durch den Ort führenden B 87 fährt man zur A 4 in weniger als einer viertel Stunde, bevor man wenig später die Zentren von Weimar und Erfurt erreicht.
Im benachbarten Kranichfeld und in Bad Berka befinden sich Einkaufsmöglichkeiten, Ärzte und Apotheken. Ein Kindergarten liegt in Tannroda selbst, ebenso eine Grundschule und der Bahnhof. Die hier eingesetzte Ilmtalbahn verkehrt zwischen Weimar und Kranichfeld., drei regionale Buslinien ergänzen das Verkehrsangebot. Die Bushaltestelle, von wo drei unterschiedliche Busverbindungen in Richtung Erfurt, Kranichfeld und Bad Berka fahren, ist vom Wohnhaus in etwa zwei Minuten zu erlaufen.
Gleich anschließend an die Braugasse, nur zwei Minuten Fußweg vom Wohnhaus entfernt, beginnt das Naherholungsgebiet der Stadt, welches unterhalb eines Buchenhains mit zwei kleinen Seen, einem Sportplatz und einem Spielplatz aufwartet. In der ländlichen und waldreichen Region rund Tannroda gibt es zudem viele traumhafte Wander- und Radwege, Tannroda liegt sogar direkt am Ilmtal-Radweg. Auch bis zum beliebten Stausee in Hohenfelden sind es nur wenige Kilometer.
Verkehrsanbindungen / Entfernungen (ab Braugasse 1):
- Bushaltestelle Marktplatz: ca. 160 m
- Grundschule: ca. 300 m
- Bahnhof: ca. 300 m
- Kita Pusteblume: ca. 850 m
- Netto Kranichfeld: ca. 3 km
- REWE Bad Berka: ca. 5 km
- Stausee Hohenfelden: ca. 5 km
- Reiterhof Hohenfelden: ca. 8 km
- ALDI Blankenhain: ca. 8 km
- B 87 (Naumburg-Ilmenau): ca. 140 m
- A 4 (Frankfurt-Dresden) AS Weimar: ca. 11,5 km
- A 71 AS Arnstadt-Nord: ca. 24,5 km
- Flughafen Erfurt/Weimar: ca. 37 km
- Bad Berka Zentrum: ca. 5 km
- Blankenhain Zentrum: ca. 9 km
- Weimar Innenstadt: ca. 15 km
- Erfurt Innenstadt: ca. 22 km
- Stadtilm Innenstadt: ca. 17 km
- Arnstadt Innenstadt: ca. 27 km
Im benachbarten Kranichfeld und in Bad Berka befinden sich Einkaufsmöglichkeiten, Ärzte und Apotheken. Ein Kindergarten liegt in Tannroda selbst, ebenso eine Grundschule und der Bahnhof. Die hier eingesetzte Ilmtalbahn verkehrt zwischen Weimar und Kranichfeld., drei regionale Buslinien ergänzen das Verkehrsangebot. Die Bushaltestelle, von wo drei unterschiedliche Busverbindungen in Richtung Erfurt, Kranichfeld und Bad Berka fahren, ist vom Wohnhaus in etwa zwei Minuten zu erlaufen.
Gleich anschließend an die Braugasse, nur zwei Minuten Fußweg vom Wohnhaus entfernt, beginnt das Naherholungsgebiet der Stadt, welches unterhalb eines Buchenhains mit zwei kleinen Seen, einem Sportplatz und einem Spielplatz aufwartet. In der ländlichen und waldreichen Region rund Tannroda gibt es zudem viele traumhafte Wander- und Radwege, Tannroda liegt sogar direkt am Ilmtal-Radweg. Auch bis zum beliebten Stausee in Hohenfelden sind es nur wenige Kilometer.
Verkehrsanbindungen / Entfernungen (ab Braugasse 1):
- Bushaltestelle Marktplatz: ca. 160 m
- Grundschule: ca. 300 m
- Bahnhof: ca. 300 m
- Kita Pusteblume: ca. 850 m
- Netto Kranichfeld: ca. 3 km
- REWE Bad Berka: ca. 5 km
- Stausee Hohenfelden: ca. 5 km
- Reiterhof Hohenfelden: ca. 8 km
- ALDI Blankenhain: ca. 8 km
- B 87 (Naumburg-Ilmenau): ca. 140 m
- A 4 (Frankfurt-Dresden) AS Weimar: ca. 11,5 km
- A 71 AS Arnstadt-Nord: ca. 24,5 km
- Flughafen Erfurt/Weimar: ca. 37 km
- Bad Berka Zentrum: ca. 5 km
- Blankenhain Zentrum: ca. 9 km
- Weimar Innenstadt: ca. 15 km
- Erfurt Innenstadt: ca. 22 km
- Stadtilm Innenstadt: ca. 17 km
- Arnstadt Innenstadt: ca. 27 km
Modernes Wohnen in saniertem, historischem Gebäude – nahe an Erfurt, Weimar und Arnstadt | Garten | Nebengebäude zum Ausbau | Naturnahe Umgebung!
Mehr anzeigen zum Thema Sonstige Angaben
Sonstige Angaben
Für dieses Objekt besteht Ensembleschutz. Das bedeutet, nur bei Änderungen am Äußeren des Gebäudes sowie bei Schachtarbeiten besteht die Verpflichtung, eine Genehmigung einzuholen. Zuständig ist die Untere Denkmalschutzbehörde im Landratsamt Weimarer Land; die Anträge sind kostenfrei, ein Architekt ist nicht nötig. Im Gegenzug gewährt das Land Fördermittel für die Modernisierung, getätigte Ausgaben sind zudem steuerlich absetzbar.
Rechtshinweis
Alle vorstehenden Angaben zum Objekt basieren auf uns erteilten Informationen, insoweit ist eigene Haftung für deren Richtigkeit ausgeschlossen und Irrtum vorbehalten. Unsere Angebote sind freibleibend, unverbindlich und nur für den Empfänger bestimmt; sie dürfen ohne schriftliche Genehmigung nicht an Dritte weitergegeben werden. Zwischenverkauf bzw. Zwischenvermietung bleiben vorbehalten. Der Empfänger kann sich nur darauf berufen, von einem Angebot bereits vorher Kenntnis gehabt zu haben, wenn er dies der Immobilienagentur unverzüglich schriftlich mitteilt und den Nachweis hierfür erbringt.
Besichtigungen sind nach vorheriger Vereinbarung nur über unsere Agentur möglich.
Rechtshinweis
Alle vorstehenden Angaben zum Objekt basieren auf uns erteilten Informationen, insoweit ist eigene Haftung für deren Richtigkeit ausgeschlossen und Irrtum vorbehalten. Unsere Angebote sind freibleibend, unverbindlich und nur für den Empfänger bestimmt; sie dürfen ohne schriftliche Genehmigung nicht an Dritte weitergegeben werden. Zwischenverkauf bzw. Zwischenvermietung bleiben vorbehalten. Der Empfänger kann sich nur darauf berufen, von einem Angebot bereits vorher Kenntnis gehabt zu haben, wenn er dies der Immobilienagentur unverzüglich schriftlich mitteilt und den Nachweis hierfür erbringt.
Besichtigungen sind nach vorheriger Vereinbarung nur über unsere Agentur möglich.
Mehr anzeigen zum Thema Sonstige Angaben
Energieausweis
A+
< 30
A
30 - 50
B
50 - 75
C
75 - 100
D
100 - 130
E
130 - 160
F
160 - 200
G
200 - 250
H
> 250
- Nutzungsart
- Wohnen
- Baujahr lt. Energieausweis
- 1914
- Energieausweis gültig bis
- 22.12.2030
- Energieeffizienzklasse
- D
- Ausstelldatum Energiepass
- 23.12.2020
- wesentlicher Energieträger
- Gas